2026
Appalachia
34EGL28603AH26
Available Now For
$111,930
MANUFACTURED HOME DESCRIPTION
MANUFACTURED HOME OPTIONS
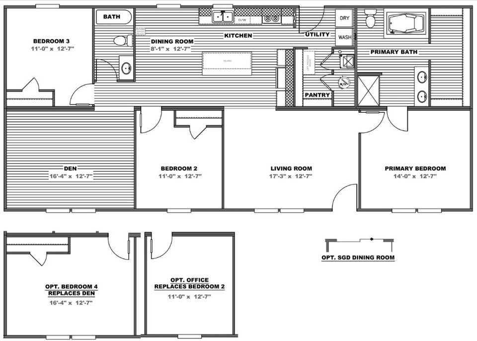
The Eagle 60 by Clayton Appalachia is a 3-bedroom, 2-bathroom manufactured home with 1,580 square feet, designed for families. Key features include a private master suite, a family room, a large kitchen with an island and pantry, a utility/laundry room, and a separate tub and shower in the master bath.
Sales price includes the wholesale price of the Home Only. As we deliver to various parts of Illinois, Missouri, Kentucky and Indiana, we want to charge for only what you need to pay for. We offer to package a price for you that can include Grading/Backfill, Delivery, Anchor & Set, Crane work, Concrete Footer Foundation, Ext./Int. Trim Out, Heat Pump/AC, Skirting (Block, Vinyl, Wood, Metal), Front/Rear Steps, Decks, Plumbing Connections, Sewer/Septic Connections, Septic Installs, Meter Box/Electric Connections, Driveways, Basements, Garages/Storage Sheds, Gutters and HUD Inspections and State Registration.

