2026
Buccaneer
73ADM32683AH26
Available Now For
$198,796
MANUFACTURED HOME DESCRIPTION
MANUFACTURED HOME OPTIONS
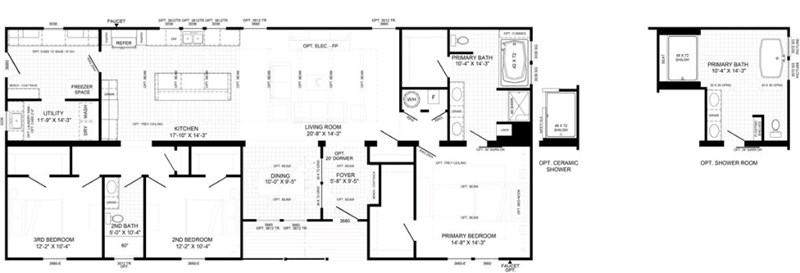
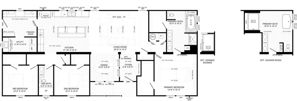
The Buccaneer Homes "Mill House" is a spacious, modern farmhouse-style manufactured home, around 1,962 sq. ft., featuring 3 bedrooms, 2 bathrooms, an open floor plan with a large kitchen island, subway tile, and butcher block counters, plus luxury vinyl flooring and a primary suite with a soaking tub and tiled shower. Key design elements include shiplap walls, an electric fireplace, LED lighting, crown molding, and often a covered deck, offering a blend of stylish finishes and practical, family-friendly living.
Sales price includes the wholesale price of the Home Only. As we deliver to various parts of Illinois, Missouri, Kentucky and Indiana, we want to charge for only what you need to pay for. We offer to package a price for you that can include Grading/Backfill, Delivery, Anchor & Set, Crane work, Concrete Footer Foundation, Ext./Int. Trim Out, Heat Pump/AC, Skirting (Block, Vinyl, Wood, Metal), Front/Rear Steps, Decks, Plumbing Connections, Sewer/Septic Connections, Septic Installs, Meter Box/Electric Connections, Driveways, Basements, Garages/Storage Sheds, Gutters and HUD Inspections and State Registration.

